Skip to main content

Villa 42

A place to truly enjoy life

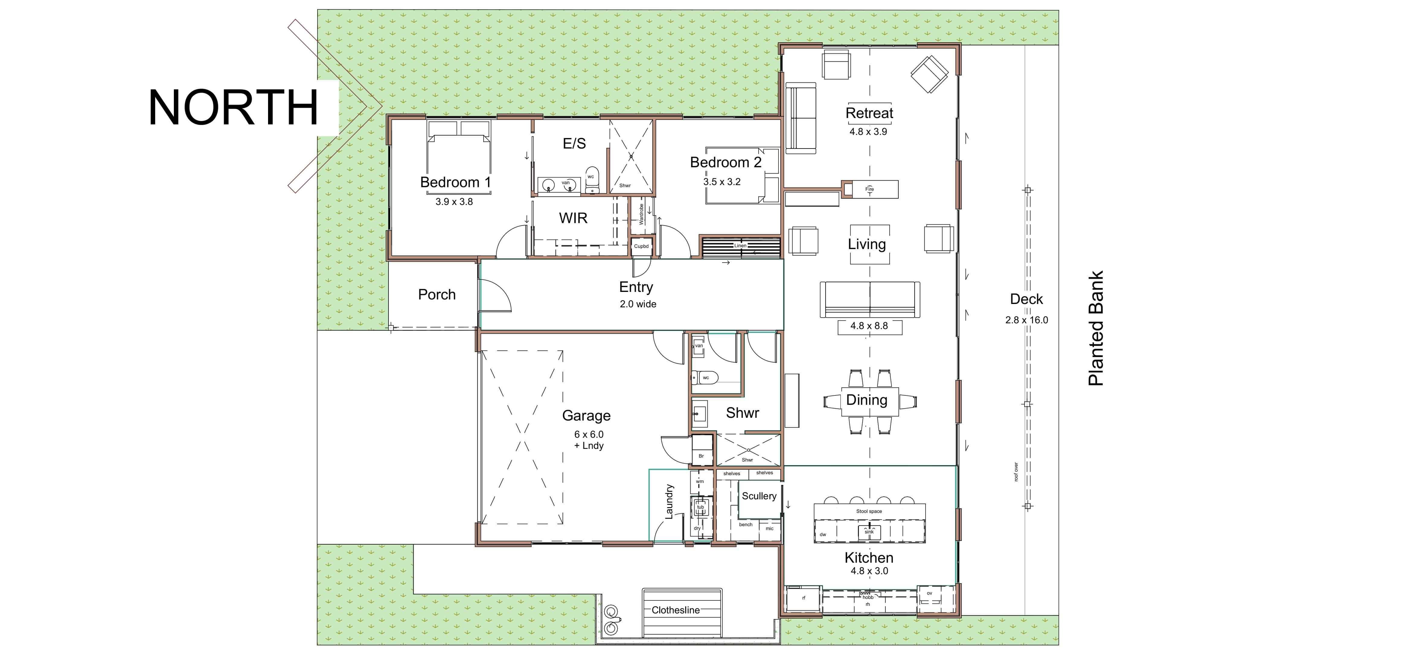
Villa 42 is a stunning, brand-new home located in Stage 2 of Te Awa Lifecare Village, just minutes from the charm of Cambridge CBD.

A wide entranceway and generous hallway create an immediate sense of space and welcome. This beautifully designed two-bedroom villa features elegant double bedrooms, with the master suite offering a walk-in wardrobe and a spacious ensuite.

Open-plan living sits at the heart of the home, complemented by a stylish kitchen with stone benchtops, an integrated double-door fridge/freezer, and a well-sized scullery, ideal for both everyday living and entertaining. A light-filled retreat room provides a versatile second living space, perfect as a media room, reading nook, or creative space.

High cathedral-style ceilings and a striking three-sided gas fireplace add warmth and character, while luxurious curtains, sheers, and electric blinds complete the refined interior. Outdoors, a private north-facing deck offers all-day sun and ample space for relaxing or entertaining.

Discover the comfort and elegance of Villa 42 for yourself. To arrange a private viewing or request further information, please phone 07 827 6103 or email us.
We would love to show you through.

 

This product has been added to your cart

CHECKOUT